A stylish two-bedroom townhouse in the heart of Mayfair, set over four well-designed floors.
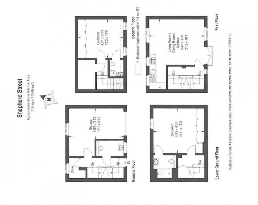
The property features two double bedrooms, both with en-suite bathrooms, along with a guest WC and a separate utility room.
On the ground floor, you'll find the utility room, guest WC, and internal access to a private garage. The lower ground floor hosts a spacious bedroom with an en-suite.
The first floor is dedicated to a beautifully designed open-plan kitchen and living area; perfect for modern living and entertaining. The top floor offers a bright principal bedroom with a well-appointed en-suite.
A refined home in a prestigious location, combining comfort, practicality, and timeless Mayfair appeal.
Moments away from Shepherds Market and a short walk from Hyde Park.
• Large Open Plan Kitchen/Living Room
• 2 Bedrooms
• 2 En Suite Shower Rooms
• Guest W/C
• Garage
• Wooden Flooring Throughout
• 1249 sqft
• Townhouse
Green Park Underground Station is 0.25 miles away.
Hyde Park Corner Underground Station is 0.27 miles away.
Bond Street Underground Station is 0.58 miles away.
Knightsbridge Underground Station is 0.60 miles away.
Piccadilly Circus Underground Station is 0.68 miles away.